Information und Terminvereinbarung
Vertrieb
+49 2161 54897-0
info@kuepper-wohnbau.de
Korschenbroich-Kleinenbroich
Neubauprojekt – moderne Eigentumswohnungen mit Qualität & Weitblick
BESCHREIBUNG
In der Carbonnestraße 3 entstehen 16 hochwertig ausgestattete, barrierefreie Eigentumswohnungen in einer ruhigen, aber gut angebundenen Wohnlage in Korschenbroich-Kleinenbroich. Das Gebäude erfüllt aktuelle energetische Standards und vereint durchdachte Architektur mit nachhaltiger Technik.
- 1- bis 4-Zimmerwohnungen mit 37,86 – 131,16 m² Wohnfläche
- Alle Wohnungen mit Balkon oder Terrasse
- Barrierefreie Zugänge mit Aufzug vom Keller bis ins Staffelgeschoss
- Effizienzhaus-Standard (GEG 2024 / EH 55) mit Luft-Wasser-Wärmepumpe
- Photovoltaikanlage auf dem Dach zur Eigenstromversorgung
- Tiefgarage mit Wallbox-Vorbereitung je Stellplatz
Geplante Fertigstellung: Ende 2027
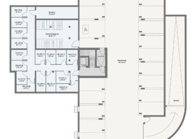
Grundrisse
Ansichten
GEBÄUDEAUSSTATTUNG
- Luft-Wasser-Wärmepumpe
- Photovoltaikanlage
- Tiefgarage
- Personenaufzug vom Keller bis ins Staffelgeschoss
- Kellerabteile und Fahrradabstellflächen
- Hochwertige Fassadengestaltung mit Wärmedämmverbundsystem & Klinkerriemchen
- Außenanlagen mit Spielbereich
- Extensive Dachbegrünung zur Regenrückhaltung & Klimapufferung
WOHNUNGSAUSSTATTUNG
- Hochwertiger Design-Vinylboden (Amtico Spacia) oder Auswahl aus Bemusterung
- Fußbodenheizung mit Raumthermostaten
- Elektrisch betriebene Rollläden mit wärmegedämmten Kästen
- Dreifach-Wärmeschutzverglasung
- Videogegensprechanlage in jeder Wohnung
- Balkon oder Terrasse mit Außenlicht & Steckdose
- Bad mit bodengleicher Dusche, Badewanne, Hänge-WC & Markenarmaturen (Hansgrohe, Geberit)
- Rauchmelder & Medienverteiler mit Glasfaseranbindung im Gebäude (FTTB)
LAGE & UMGEBUNG – CARBONNESTRAßE
In der Carbonnestraße entstehen barrierearme Eigentumswohnungen mit 1–4 Zimmern (37–131 m²) – ideal für Familien, Pendler und Kapitalanleger.
Verkehr & Lage: Düsseldorf in 20 Minuten per S-Bahn, A52/A46/A57 direkt erreichbar. Ruhige Grünlage mit entspannter Atmosphäre trotz Stadtnähe.
Familie & Sicherheit: Mehrere Kindergärten und Schulen vor Ort, niedrige Kriminalitätsrate.
Infrastruktur: Supermärkte, Bäcker, Apotheken und Ärzte im Ort vorhanden. Für größere Besorgungen schnell in Düsseldorf.
Preis-Leistung: Deutlich günstigere Immobilienpreise als in Düsseldorf – mehr Wohnraum fürs Geld.
Information und Terminvereinbarung
Vertrieb
+49 2161 54897-0
info@kuepper-wohnbau.de







